Mieszkanie na sprzedaż Wrocław, Fabryczna, Maślice

3 pokoje
54.75 m²
10 958,90 zł/m2
1 piętro
NIDO-MS-384
Oblicz ratę kredytu

600 000 zł

Mieszkanie na sprzedaż
Nowa oferta

Szczegóły oferty

Symbol oferty NIDO-MS-384
Powierzchnia 54,75 m²
Powierzchnia użytkowa [m2] 54,75 m²
Powierzchnia balkonów/tarasów 6,00 m²
Liczba pokoi 3
Liczba sypialni 2
Rodzaj budynku blok
Technologia budowlana żelbeton
Piętro 1
Liczba pięter w budynku 3
Garaż brak
Stan lokalu deweloperski
Okna PCV
Instalacje nowe
Balkon jest
Liczba balkonów 1
Rok budowy 2024
Plac zabaw tak
Widok na osiedle
Gaz brak
Woda ciepła - miejska
Dojazd asfalt
Otoczenie rzeka
Ogrzewanie C.O. miejskie
Alarm tak
Winda tak
Liczba wind 1
Usytuowanie środkowe
Drzwi antywłamaniowe tak
Pomieszczenia
Typ kuchni aneks kuchenny połączony z jadalnią i salonem
Rodzaj kuchni aneks kuchenny - połączony z salonem
Typ łazienki razem z wc
Liczba łazienek 1
Liczba przedpokoi 1
Katarzyna Dorosz

Katarzyna Dorosz

Właściciel biura

Napisz wiadomość 30 Ofert

Opis nieruchomości

Brak podatku 2%PCC oraz prowizji!

To idealne miejsce dla osób ceniących kontakt z naturą oraz aktywny styl życia. Przestronne ścieżki do spacerów, zielone zakątki do relaksu oraz różnorodne możliwości sportowe sprawiają, że codzienne życie staje się przyjemnością


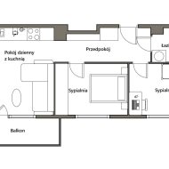
Mieszkanie 3 pokojowe o powierzchni 54,75 m² usytuowane na 1 piętrze kameralnego budynku 3 piętrowego z windą.
Mieszkanie gotowe do odbioru

Opis mieszkania:
- dwie ustawne sypialnie
- spory balkon z wyjściem z pokoju dziennego 
- przestronny przedpokój z miejscem na szafę
- słoneczne mieszkanie, wystawa okienna skierowana na południe
- obligatoryjny zakup miejsca postojowe do mieszkania - dodatkowo płatne

Cena mieszkania: w grudniowej promocji 600 000 zł  (cena regularna 656 333 zł)

Każde mieszkanie zaprojektowane jest z myślą o funkcjonalności i komforcie mieszkańców.


Udogodnienia:
- monitoring
- lokale usługowe na osiedlu
- ładnie zagospodarowane części wspólne osiedla bujną roślinnością i kwiatami
- place zabaw dla dzieci
- w pobliżu osiedla 5 kawiarni i restauracji, 9 sklepów, liczne obiekty sportowe, paczkomat, siłownia zewnętrzna,  placówki edukacyjne, place zabaw

Lokalizacja: Inwestycja znajduje się na Maślicach, z doskonałym dostępem do komunikacji miejskiej, szkół, sklepów oraz terenów rekreacyjnych. Bliskość Lasu Pilczyckiego oraz Parku Maślickiego zapewniają idealne warunki do relaksu i aktywnego spędzania czasu na świeżym powietrzu.

Dlaczego warto? Zdecyduj się na zakup mieszkania i stań się częścią dynamicznie rozwijającej się społeczności! Gwarantuję profesjonalną obsługę podczas całego procesu zakupu i pomoc w uzyskaniu kredytu hipotecznego oraz wykończenia nieruchomości

Mieszkanie jest w stanie deweloperskim. Zdjęcia zamieszczone w ogłoszeniu to wizualizacje, które mają na celu przedstawienie potencjału wnętrza.


Zapraszam do kontaktu, jestem do Państwa dyspozycji pod numerem telefonu: 574-076-776
Nie czekaj – zostań właścicielem wymarzonego mieszkania już dziś!

Katarzyna Dorosz
NiDO Nieruchomości
nr licencji: 24771
tel: 574-076-776

Powyższa oferta ma charakter informacyjny i nie stanowi oferty handlowej w rozumieniu art. 66 §1 Kodeksu Cywilnego.
Pośrednik odpowiedzialny zawodowo za wykonanie umowy pośrednictwa: Katarzyna Dorosz licencja nr: 24771

Lokalizacja nieruchomości

Kalkulatory

Kalkulator kredytowy

Wysokość raty

PLN
%

Kalkulator kosztów

Taksa notarialna
(opłata notarialna)

Wniosek o wpis do KW

VAT od prowizji
agencji nieruchomości

VAT od taksy notarialnej
(opłaty notarialnej)

Prowizja agencji nieruchomości

Wypisy aktu notarialnego

Razem

Uwaga: mogą wystąpić dodatkowe opłaty za założenie księgi wieczystej oraz ustanowienie hipoteki.

PLN
PLN
PLN
PLN
PLN
%
PLN

Podobne oferty

Nowa oferta

Mieszkanie na sprzedaż

Wrocław, Fabryczna

3 pokoje 55 m2 10 823,43 zł/m2
Nowa oferta

Właściciel biura

Proszę wprowadzić poprawne imię i nazwisko
Proszę wprowadzić poprawny numer telefonu
Proszę wprowadzić poprawny adres e-mail
Proszę zaznaczyć wymagane zgody
Rozwiąż równanie:
18 2
Niepoprawny wynik